Nắp Rửa Điện Tử Washlet TOTO TCF4911Z#NW1 Dòng S7 nổi bật với công suất mạnh mẽ, điều khiển từ xa tiện lợi và khả năng làm sạch tự động bằng Ewater. Thiết bị tương thích với nhiều dòng bồn cầu, giúp tối ưu hóa vệ sinh cá nhân và tiết kiệm thao tác hàng ngày.

Thông số kỹ thuật Nắp Rửa Điện Tử Washlet TOTO TCF4911Z#NW1 Dòng S7
- Mã sản phẩm: TCF4911Z#NW1
- Thiết kế: Thân dài, dùng cho bàn cầu giấu dây
- Công suất: 830 – 839W
- Áp lực nước: 0.05MPa ~ 0.75MPa
- Nguồn điện: 220V
- Vật liệu: Nhựa
- Màu sắc: Trắng
- Điều khiển: Bảng điều khiển từ xa không dây
- Tương thích:
- Bồn cầu 1 khối TOTO: C885D, C889DR, C887DR,…
- Bồn cầu 2 khối TOTO: CS300, CS320, CS325,…
- Bồn cầu INAX: AC-900, AC-1017,…
- Hầu hết các dòng của American Standard, Viglacera, Caesar
Tính năng nổi bật Nắp Rửa Điện Tử Washlet TOTO TCF4911Z#NW1 Dòng S7
- Nắp TOTO TCF4911Z#NW1 trang bị cảm biến tự động giúp nắp mở ra khi người dùng tiếp cận và tự đóng lại sau khi rời đi, tăng tính tiện lợi và hạn chế tiếp xúc tay trực tiếp trong môi trường vệ sinh.

- Chế độ rửa trước và sau kết hợp massage bằng tia nước nhẹ, cho phép điều chỉnh chính xác vị trí vòi để phù hợp với từng người, hỗ trợ vệ sinh nhẹ nhàng và thoải mái hơn.
- Tính năng sưởi ấm nắp ngồi đi cùng điều chỉnh nhiệt độ nước và sấy khô theo nhu cầu giúp duy trì sự dễ chịu ngay cả khi sử dụng trong điều kiện thời tiết lạnh.
- Chức năng khử mùi tự động làm việc ngay khi có người sử dụng, hệ thống hút và lọc không khí giúp duy trì không gian nhà vệ sinh luôn sạch mùi và dễ chịu cho lần dùng tiếp theo.

- Công nghệ Ewater phun sương điện phân được kích hoạt sau mỗi lần sử dụng, làm sạch vòi rửa và lòng bàn cầu, ngăn vi khuẩn sinh sôi mà không cần dùng thêm hóa chất tẩy rửa.

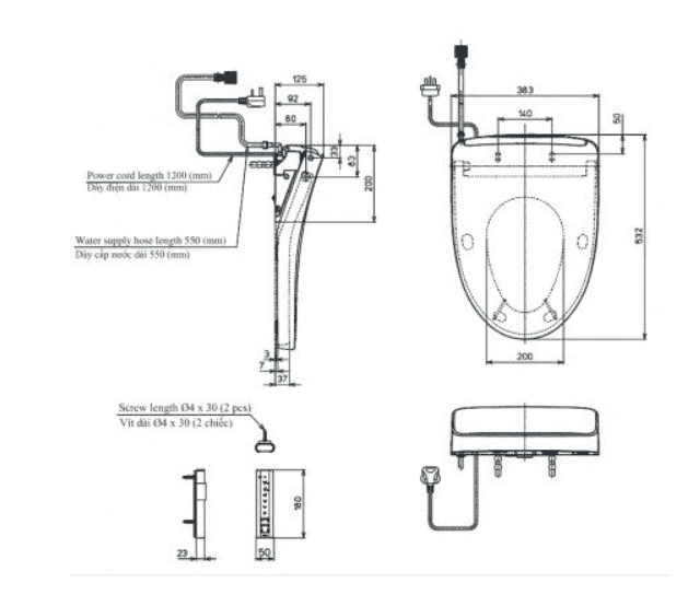
Bản vẽ kỹ thuật Nắp Rửa Điện Tử Washlet TOTO TCF4911Z#NW1

Danh mục: Thiết Bị Vệ Sinh / Bồn Cầu / Bồn cầu TOTO / Bồn Cầu Thông Minh TOTO / Nắp Bồn Cầu Thông Minh TOTO
Thương hiệu: Thiết Bị Vệ Sinh TOTO
Review Nắp Rửa Điện Tử Washlet TOTO TCF4911Z#NW1 Dòng S7
Chưa có đánh giá nào.