Nắp Rửa Điện Tử Washlet TOTO TCF34570GAA#NW1 Dòng S5 sử dụng nguồn điện 220V, thiết kế thân D nhỏ gọn, tích hợp bảng điều khiển cầm tay tiện lợi. Với công nghệ Ewater+ khử khuẩn, vòi rửa đa chế độ và khả năng sưởi ấm nắp ngồi, sản phẩm tối ưu trải nghiệm vệ sinh hàng ngày.
Thông số kỹ thuật Nắp Rửa Điện Tử Washlet TOTO TCF34570GAA#NW1 Dòng S5
- Mã sản phẩm: TCF34570GAA#NW1 (220V)
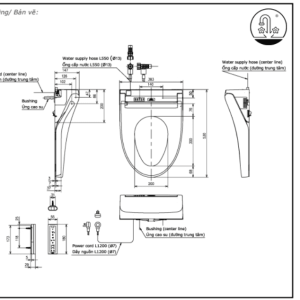
- Kích thước: 540D x 383W x 130H mm
- Màu sắc: Trắng
- Thiết kế: Thân D, phù hợp với bàn cầu giấu dây
- Bảng điều khiển: Cầm tay, điều khiển từ xa
- Áp lực nước: 0.05 ~ 0.75 MPa
- Nguồn điện: 220V, 50/60Hz
- Xuất xứ: Trung Quốc
- Bảo hành: 2 năm
Tính năng nổi bật Nắp Rửa Điện Tử Washlet TOTO TCF34570GAA#NW1 Dòng S5
- Nắp Rửa Điện Tử Washlet TOTO TCF34570GAA#NW1 Dòng S5 được trang bị bảng điều khiển cầm tay, giúp người dùng dễ dàng thao tác từ xa mà không cần chạm trực tiếp vào thiết bị.
- Công nghệ Ewater+ tạo ra dung dịch khử khuẩn từ nước điện phân, tự động phun rửa lòng bàn cầu và đầu vòi trước – sau khi sử dụng, tăng cường vệ sinh tối đa.
- Hệ thống vòi rửa tích hợp nhiều chế độ như rửa trước, rửa sau và massage bằng tia nước, đi kèm với khả năng đưa bọt khí vào giọt nước để làm sạch nhẹ nhàng hơn.
- Chức năng sấy khô giúp làm khô nhanh chóng sau khi vệ sinh mà không cần dùng giấy, kết hợp với tính năng khử mùi tự động giữ cho không gian luôn sạch thoáng.
- Nắp ngồi được tích hợp cảm biến nhiệt, có thể điều chỉnh nhiệt độ linh hoạt theo điều kiện môi trường để mang lại trải nghiệm thoải mái quanh năm.
- Khi kết hợp với két âm WH172AAT, sản phẩm còn hỗ trợ chức năng tự xả nước hoàn toàn tự động, giúp tối ưu hóa quy trình sử dụng hàng ngày.
Bản vẽ kỹ thuật của Nắp Rửa Điện Tử Washlet TOTO TCF34570GAA#NW1 Dòng S5

Danh mục: Thiết Bị Vệ Sinh / Bồn Cầu / Bồn cầu TOTO / Bồn Cầu Thông Minh TOTO / Nắp Bồn Cầu Thông Minh TOTO
Thương hiệu: Thiết Bị Vệ Sinh TOTO
Review Nắp Rửa Điện Tử Washlet TOTO TCF34570GAA#NW1 Dòng S5
There are no reviews yet.