Voi cam ung TOTO TLE29002A/TLE04502A1/TLN01102A được đúc từ đồng và mạ sáng loáng, giúp giữ được độ mới lâu bền với thời gian. Có độ cong mềm mại, độ cao phù hợp và phần cảm biến gắn đầu vòi, giúp người dùng cảm thấy tiện nghi, an tâm hơn khi sử dụng.

Thông số kỹ thuật vòi cảm ứng TOTO TLE29002A TLE04502A1 TLN01102A
- Mã sản phẩm: TLE29002A/TLE04502A1/TLN01102A
- Xuất xứ: Trung Quốc
- Nguồn nước: Lạnh
- Lưu lượng nước: 2L/phút
- Áp lực nước: 0.05 ~ 0.75 MPa
- Chất liệu: Đồng mạ chrome bóng
- Bộ điều khiển vòi cảm ứng kèm dây cấp, van dừng
- Mua thêm bộ xả TVLF405
Đặc điểm của vòi rửa tay cảm ứng TOTO TOTO TLE29002A/TLE04502A1/TLN01102A Pin 2L
- Thiết kế vòi cong mềm mại, đầu vòi có hệ thống lọc, thân vòi mạ Nickel Chrome dễ lau chùi, chống bong tróc, hoen gỉ khi va chạm mạnh và tiếp xúc với môi trường.
- Sử dụng công nghệ cảm ứng Eco-power, cho phép người dùng tiết kiệm được lượng nước sử dụng.
- Vòi cực dễ sử dụng bởi cảm biến nhạy đặt trên đầu vòi, có thể sử dụng mà không cần quá nhiều thao tác, lượng nước xả ra mỗi lần chỉ rơi vào khoảng 2 lít trong một phút xả.
- Van đĩa bằng sứ chống bám cặn bẩn giúp khóa van nước hoàn toàn.
- Vô cùng thích hợp cho các tòa chung cư, tòa nhà lớn, trung tâm thương mại, những nơi công cộng. Hay các gia đình có điều kiện và muốn không gian nhà tắm thêm tiện nghi, hiện đại.
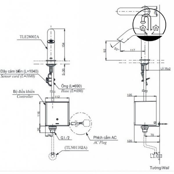
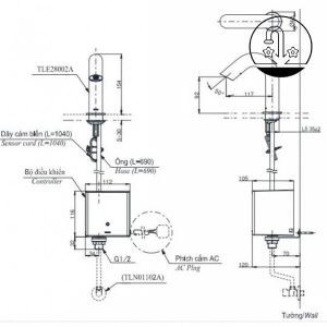
Để thuận tiện hơn trong việc tự lắp đặt tại nhà, xem thêm bản vẽ kỹ thuật của vòi TLE29002A+TLE04502A1+TLN01102ATOTO dưới đây nhé!

Tham khảo các sản phẩm khác tại Kim Quốc Tiến: Vòi cảm ứng TOTO, Vòi nước cảm ứng
Trọn bọ thiết bị vệ sinh toto tại: https://kimquoctien2.puramu.dev/thiet-bi-ve-sinh-toto
Review Vòi Lavabo TOTO TLE29002A/TLE04502A1/TLN01102A Cảm Ứng Nước Lạnh
There are no reviews yet.