LT647CS là sản phẩm lavabo TOTO bán âm bàn mới ra mắt thị trường vào gần cuối năm 2021. Thiết kế đọc đáo với kiểu dáng khối vuông cứng cáp, tạo ra điểm nhấn cho nội thất của bạn. Giúp tiết kiệm không gian và dễ dàng lắp đặt.

Thông tin cơ bản chậu rửa bán âm TOTO LT647CS
- Mã sản phẩm: LT647CS
- Xuất xứ: Việt Nam
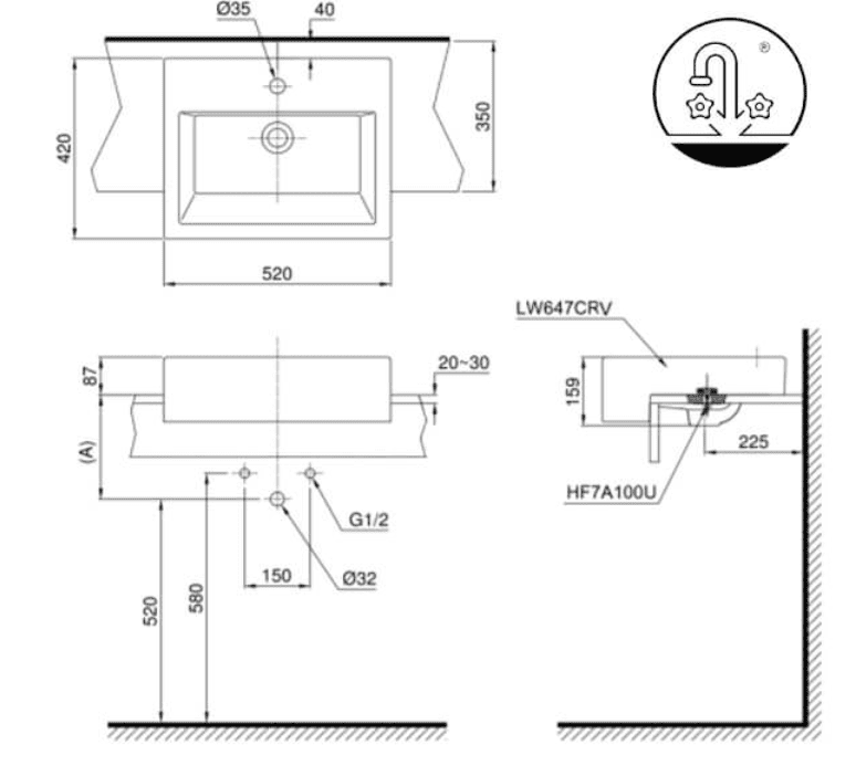
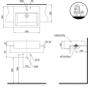
- Kích thước: L420 x W520 x H159 mm
- Màu sắc: Trắng
- Chất liệu: Sứ vệ sinh
- Lỗ bắt vòi: Trên chậu
- Đường kính lỗ bắt vòi: Ø35 (mm)
- Lỗ xả tràn: Có
Ưu điểm nổi bật của lavabo bán âm TOTO LT647CS
- Được làm từ chất liệu sứ cao cấp vừa bóng đẹp vừa có độ bền lâu.
- Sở hữu thiết kế hình chữ nhật, màu sắc hài hòa và thanh lịch thích hợp cho nhiều kiểu nhà tắm, tạo nên sự sang trọng và hiện đại.
- Ứng dụng công nghệ CeFiONtect giúp tăng khả tăng chống bám dính, hạn chế tối đa các vết bẩn, kháng khuẩn tốt. Luôn giữ cho bề mặt chậu sáng bóng, nhẵn mịn, kéo dài thời gian sử dụng.
- Lòng chậu vừa sâu vừa đều cùng với lỗ xả tràn chống tràn nước, nên thuận tiện sử dụng cũng như tiết kiệm nguồn nước khi không cho nước có cơ hội chảy ra ngoài.
- Bề mặt rộng rãi có thể để được những vật dụng nhỏ trên kệ mà không sợ bị rớt trong quá trình sử dụng.
- Lỗ đặt vòi Ø35 được thiết kế theo tiêu chuẩn quốc tế, có thể kết hợp được với các mẫu vòi chậu khác như: TLG01301V, TLG02301V, TLG03301V, TLG04301V….
Bản vẽ kỹ thuật của chậu rửa mặt TOTO LT647CS#XW
Dưới đây là bản vẽ kỹ thuật của LT647CS, các bạn có thể tham khảo thêm để thuận tiện hơn khi lắp đặt tại nhà nhé!

Để biết thêm chi tiết về những mẫu sản phẩm lavabo bán âm bàn TOTO thiết bị vệ sinh mới nhất và giá bán, hãy liên hệ ngay với Kim Quốc Tiến nhé. Đội ngũ nhân viên giàu kinh nghiệm luôn tận tình và sẵn lòng hỗ trợ tư vấn miễn phí.
Xem thêm các sản phẩm liên quan khác của Kim Quốc Tiến: Lavabo TOTO, Bệt vệ sinh TOTO, Lavabo
Review Chậu Rửa Mặt Lavabo TOTO LT647CS#XW Bán Âm Bàn
Chưa có đánh giá nào.