Chậu rửa bán âm TOTO LT533R với đường nét thiết kế độc đáo, bo tròn bắt mắt, tạo ra điểm nhấn cho nội thất nhà tắm của bạn. Lắp đặt dễ dàng, tiết kiệm được nhiều diện tích, phù hợp với mọi không gian. Giúp làm tăng tính thẩm mỹ cao, thêm phần sang trọng và đẳng cấp. Hãy cùng Kim Quốc Tiến tìm hiểu kỹ hơn về đặc điểm của nó ở bài viết sau đây nhé!

Chậu rửa bán âm TOTO LT533R có đặc điểm gì nổi bật?
- Hoàn thiện từ chất liệu sứ vệ sinh cao cấp, bề mặt được tráng men sáng bóng, cho độ bền bỉ cao, không bị đổi màu theo thời gian.
- Lòng chậu sâu và rộng, kết hợp cùng lỗ thoát tràn. Hạn chế được tình trạng nước văng ra ngoài, tạo sự thoải mái khi dùng.
- Có thiết kế hình tròn đẹp mắt, sang trọng, phù hợp với các lối kiến trúc không gian phòng tắm khác nhau, làm tăng tính thẩm mỹ cao.
- Vòi nước được bắt ngay trên bàn không gây ảnh hưởng gì đến chậu rửa trong suốt quá trình sử dụng.
- Bên cạnh đó, các bạn cũng có thể tận dụng khoảng trống trên bàn để bỏ các vật dụng vệ sinh cá nhân, chăm sóc da,…gọn gàng và sạch sẽ.
- Chậu được trang bị công nghệ CeFiONtect giúp tăng khả tăng chống bám dính, hạn chế tối đa các vết bẩn, kháng khuẩn tốt. Giúp việc vệ sinh và lau chùi trở nên dễ dàng hơn. Hạn chế tối đa sử dụng các chất tẩy rửa mạnh gây hại cho tay và không đảm bảo an toàn sức khỏe người sử dụng.
- Lỗ đặt vòi Ø35 được thiết kế theo tiêu chuẩn quốc tế, có thể kết hợp được với các mẫu vòi lavabo như: TX116LESV4, TLG01304V, TLG02304V, TLG03303V, TLG07301V, TLG08301V, TLG09301V,…
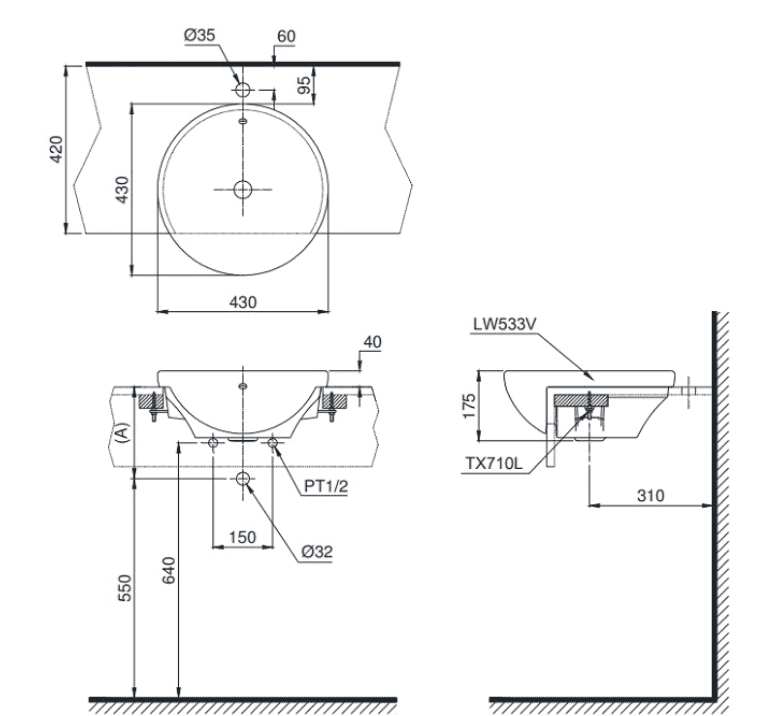
Chậu rửa TOTO LT533R dễ dàng lắp đặt và không tốn quá nhiều thời gian và công sức. Xem thêm bản vẽ kỹ thuật của nó để thuận tiện hơn khi tự lắp đặt tại nhà nhé!

Kinh nghiệm chọn mua chậu rửa TOTO phù hợp với phòng tắm
- Hiện nay với đa dạng các dòng sản phẩm chậu rửa mặt trên thị trường, để có thể lựa chọn thật phù hợp thì không hề đơn giản chút nào. Chính vì thế Kim Quốc Tiến sẽ chia sẻ đến bạn một số kinh nghiệm nhỏ để dễ dàng hơn trong việc chọn lựa nhé!
- Đối với phòng tắm có diện tích rộng: bạn có thể tùy chọn bất cứ kiểu dáng nào đều phù hợp.
- Đối với nhà tắm có diện tích hẹp: vì không gian có chút khiêm tốn nên các bạn nên lựa chọn các mẫu chậu đặt góc, chân treo lửng, tiết kiệm tối ưu được diện tích.
- Bên cạnh đó, các bạn cũng nên chú ý đến kích thước của chậu và màu sắc, để có thể kết hợp thật hợp lý, hài hòa với nhà tắm của mình. Tạo nên một khoảng không gian thoải mái và thư giãn tuyệt vời cho gia đình.
Nếu còn thắc mắc hoặc cần được tư vấn gì thêm, vui lòng liên hệ với chúng tôi vào đường dây nóng 0898.888.516. Hoặc đến tại địa chỉ cửa hàng gần nhất nhé!
Xem thêm các sản phẩm liên quan khác của Kim Quốc Tiến: Lavabo TOTO, Bệt vệ sinh TOTO, Lavabo
Review Chậu Rửa Mặt Lavabo TOTO LT533R#XW Bán Âm Bàn
Chưa có đánh giá nào.