Vòi lavabo TOTO TVLM109RU nóng lạnh nằm trong bộ sưu tập RUFICE với kiểu dáng cổ cao. Vòi được thiết kế góc vuông sang trọng và cạnh vát tinh tế. Cho không gian toát lên vẻ đẳng cấp, hiện đại hơn. Sản phẩm được phủ lớp mạ Niken-Crom sáng bóng. Làm tăng tính thẩm mỹ và bảo vệ vòi không bị hen gỉ, sử dụng bền đẹp với thời gian.
Thông tin cơ bản vòi lavabo TOTO TVLM109RU nóng lạnh
- Mã sản phẩm: TVLM109RU
- Xuất xứ: Trung Quốc, lắp ráp tại Việt Nam
- Bộ sưu tập: FUFICE
- Lớp mạ: Chrome
- Chất liệu: Brass
- Áp lực nước: 0.05MPa~1.0MPa
Lưu ý: Sản phẩm bao gồm bộ xả, không bao gồm ống thải chữ P. Có thể dùng với ống thải nước chữ P: TVLF402
Đặc điểm nổi bật của sản phẩm
- Sản phẩm được thiết kế trau chuốt từng đường nét mang lại sự giản đơn nhưng lại tinh tế, trang nhã và thanh lịch.
- Thân van được làm từ chất liệu đồng thau nguyên chất, có khả năng chịu lực, chịu nhiệt tốt, cho độ bền cao, thân thiện với môi trường.
- Lớp mạ Nickel Chrome bền vững với thời gian, cho bề mặt sáng bóng, chống trầy xước cao, dễ dàng vệ sinh và lau chùi.
- Tay gạt nhỏ, mỏng chỉ cần một cử động chạm nhẹ đã có ngay dòng nước tuôn trào êm ái mà không văng ra ngoài.
- Van đĩa bằng sứ giúp khóa nước hoàn toàn và chống lại tình trạng bám cặn bẩn gây hư hại sản phẩm.
- Lắp đặt sử dụng khá rộng rãi tại mọi không gian phòng tắm của Việt Nam.
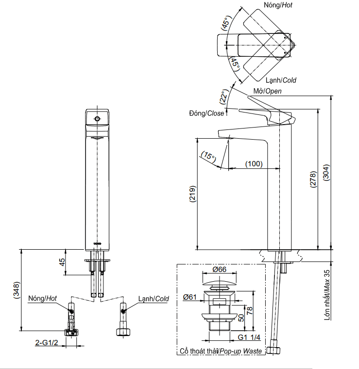
Bản vẽ kỹ thuật vòi chậu TOTO TVLM109RU
Xem thêm bản vẽ kỹ thuật của TO TO TVLM109RU để thuận tiện hơn trong việc lắp đặt ngay tại nhà nhé!

Mọi thông tin chi tiết quý khách vui lòng liên hệ vào đường dây nóng 0898.888.516 của Kim Quốc Tiến. Hoặc đến tại địa chỉ cửa hàng gần nhất để được nhân viên hỗ trợ tư vấn cụ thể hơn nhé!
Tham khảo các sản phẩm khác tại Kim Quốc Tiến: Vòi lavabo TOTO, Vòi Lavabo
Trọn bọ thiết bị vệ sinh toto tại: https://kimquoctien2.puramu.dev/thiet-bi-ve-sinh-toto
thu liên
Hàng giao nhanh và sản phẩm nhìn đẹp mắt Còn chất lượng thì chưa sử dụng nên kg đánh giá dc.nhưng rất hài lòng
Kim Quốc Tiến Quản trị viên
Cảm ơn bạn đã tin tưởng và lựa chọn mua hàng tại Kim Quốc Tiến
doanh doanh
hàng nhìn đẹp …. shop giao hàng nhanh. sản phẩm hữu ích, tiện lợi. dùng một thời gian để kiểm tra độ bền của sản phẩm ……
Kim Quốc Tiến Quản trị viên
Cảm ơn bạn đã tin tưởng và lựa chọn mua hàng tại Kim Quốc Tiến
hà minh trí
Shop bán hàng chuẩn chăm sóc khách hàng tốt ủng hộ shop nếu có nhu cầu sản phẩm
Kim Quốc Tiến Quản trị viên
Cảm ơn bạn đã tin tưởng và lựa chọn mua hàng tại Kim Quốc Tiến
nguyễn tiến
Chất lượng sản phẩm tuyệt vời. Đóng gói sản phẩm đẹp, chắc chắn. Shop phục vụ rất tốt. Rất đáng tiền.
Kim Quốc Tiến Quản trị viên
Cảm ơn bạn đã tin tưởng và lựa chọn mua hàng tại Kim Quốc Tiến