Tủ lavabo Caesar EH05259AWV là giải pháp lưu trữ gọn gàng cho không gian phòng tắm nhờ kết cấu nhỏ gọn, chất liệu chống nước và thiết kế dễ kết hợp. Sản phẩm giúp tối ưu diện tích hiệu quả mà vẫn đảm bảo tính tiện dụng và độ bền trong quá trình sử dụng hằng ngày.
Thông số kỹ thuật Tủ lavabo Caesar EH05259AWV
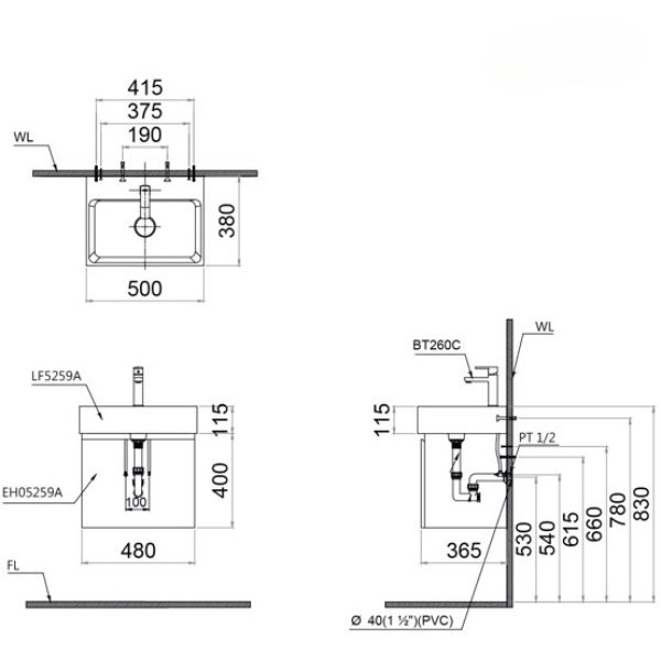
- Mã sản phẩm: EH05259AWV
- Kích thước: 365 x 485 x 400mm
- Chất liệu: Nhựa PVC
- Màu sắc: Trắng & Vân gỗ
- Tiêu chuẩn chống nước: IPX4
- Lưu ý: Giá chưa bao gồm chậu lavabo, chưa bao gồm vòi nước và bộ xả
Mô tả chi tiết Tủ lavabo Caesar EH05259AWV
- Đóng mở êm, tăng tuổi thọ sử dụng: Bản lề tủ tích hợp cơ chế đóng mở nhẹ nhàng, hạn chế va chạm mạnh và giảm thiểu tiếng ồn trong quá trình thao tác.
- Chống nước, chịu lực tốt: Nhựa PVC đạt chuẩn IPX4 giúp sản phẩm không bị thấm nước, đồng thời giữ được hình dạng và độ bền ổn định trong điều kiện độ ẩm cao.
- Cấu trúc nhỏ gọn, không chiếm diện tích: Thiết kế tối ưu cho những không gian hẹp, vẫn đảm bảo đủ sức chứa cho các vật dụng cơ bản như khăn, xà phòng hay vật tư vệ sinh.
- Tay cầm dễ thao tác: Tay nắm chắc chắn, chống trơn khi tay ướt, phù hợp cho người sử dụng mọi lứa tuổi.
- Dễ phối hợp với nhiều kiểu nội thất: Sự kết hợp giữa màu trắng và vân gỗ mang lại tính linh hoạt cao, phù hợp với nhiều kiểu thiết kế phòng tắm hiện đại lẫn truyền thống.
Bản vẽ kỹ thuật Tủ lavabo Caesar EH05259AWV chính hãng tại Kim Quốc Tiến

Mua ngay Tủ lavabo Caesar EH05259AWV chính hãng tại Kim Quốc Tiến
Sản phẩm Tủ lavabo Caesar EH05259AWV hiện đang được Kim Quốc Tiến phân phối chính hãng, đảm bảo chất lượng đúng tiêu chuẩn nhà sản xuất. Khi mua hàng tại đây, bạn sẽ nhận được tư vấn cụ thể cho từng loại không gian, hỗ trợ giao hàng toàn quốc và lắp đặt đúng kỹ thuật, mang lại trải nghiệm mua sắm tiện lợi và an tâm trong suốt quá trình sử dụng.
Danh mục: Thiết Bị Vệ Sinh / Chậu Rửa Lavabo / Lavabo CAESAR / Tủ Lavabo Caesar Liền Bàn
Thương hiệu: Thiết Bị Vệ Sinh CAESAR
Review Tủ lavabo Caesar EH05259AWV
There are no reviews yet.