Tủ lavabo Caesar cabinet EH05017AV là giải pháp tối ưu cho không gian phòng tắm cần sự gọn gàng và hiệu quả. Với thiết kế treo tường tiện lợi, khả năng chống nước chuẩn IPX4 và bản lề inox giảm chấn, sản phẩm giúp người dùng tổ chức đồ dùng cá nhân hợp lý mà vẫn đảm bảo độ bền và vận hành êm ái.
Thông số tủ lavabo Caesar cabinet EH05017AV
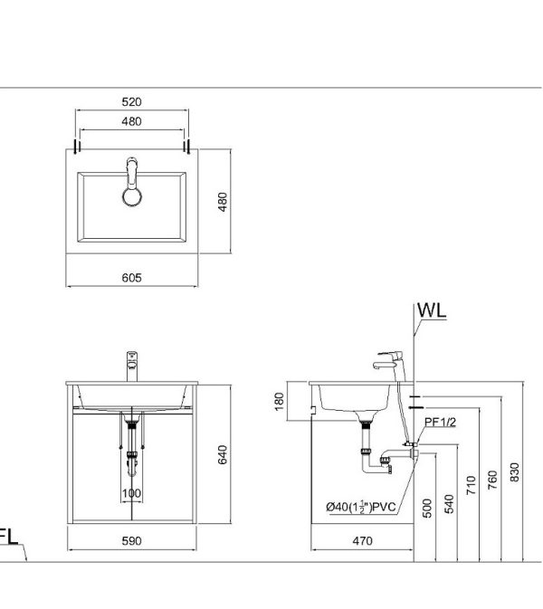
- Thiết kế: Tủ chậu treo tường
- Kích thước: 470 x 590 x 640 mm
- Chất liệu: Nhựa PVC nguyên sinh
- Màu sắc: Trắng
- Chống nước: Đạt chuẩn IPX4
- Lưu ý: Sản phẩm không bao gồm chậu lavabo, vòi nước và bộ xả.
Mô tả chi tiết tủ lavabo Caesar cabinet EH05017AV
- Treo tường linh hoạt: Thiết kế dạng treo giúp tiết kiệm diện tích sàn, thuận tiện cho việc vệ sinh và tối ưu không gian sử dụng.
- Chất liệu nhựa PVC nguyên khối: Không thấm nước, chống cong vênh và chống mốc hiệu quả, phù hợp với điều kiện độ ẩm cao trong phòng tắm.
- Bản lề inox giảm chấn: Giảm lực va đập khi đóng mở, hạn chế tiếng ồn và tăng độ bền cho cánh tủ.
- Không gian lưu trữ thông minh: Thiết kế hợp lý giúp tận dụng tối đa thể tích bên trong để chứa vật dụng cá nhân như khăn, mỹ phẩm, dụng cụ chăm sóc cá nhân,…
- Bề mặt dễ lau chùi: Tông màu trắng và chất liệu trơn nhẵn giúp vệ sinh nhanh chóng, giữ tủ luôn sạch sẽ và sáng bóng.
Bản vẽ kỹ thuật tủ lavabo Caesar cabinet EH05017AV chính hãng tại Kim Quốc Tiến

Mua ngay tủ lavabo Caesar cabinet EH05017AV chính hãng tại Kim Quốc Tiến
Sản phẩm đang có mặt tại hệ thống Kim Quốc Tiến với đầy đủ tem bảo hành, chứng từ xuất xứ và chính sách hậu mãi rõ ràng. Khách hàng có thể mua online hoặc đến showroom để được tư vấn trực tiếp, lựa chọn mẫu mã phù hợp với không gian nội thất gia đình.
Danh mục: Thiết Bị Vệ Sinh / Chậu Rửa Lavabo / Lavabo CAESAR / Lavabo Caesar Treo Tường
Thương hiệu: Thiết Bị Vệ Sinh CAESAR
Review Tủ lavabo Caesar cabinet EH05017AV
Chưa có đánh giá nào.