Móc treo giấy vệ sinh TOTO YH903V thuộc bộ phụ kiện G – loại vuông. Là một trong những vật dụng vệ sinh không thể thiếu cho mỗi không gian nhà tắm, khu vệ sinh công cộng,… Có thiết kế tối giản, dễ dàng sử dụng, phù hợp cho cả người già và trẻ em. Chất liệu không hoen gỉ, móp mép, bị tác động bởi ngoại lực, cho tuổi thọ sử dụng dài lâu.
Đặc điểm của móc treo giấy vệ sinh ToTo YH903V
- Sản phẩm được sản xuất và lắp ráp tại Việt Nam theo công nghệ tiên tiến nhất đến từ Nhật Bản.
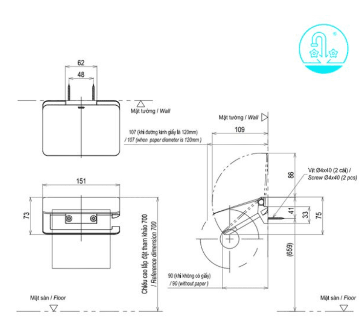
- Kích thước nhỏ gọn 148 x 106 x 58mm, thích hợp với các cỡ giấy vệ sinh trên thị trường.
- Thiết kế hiện đại, sang trọng hài hòa với dòng sản phẩm BASIC+.
- Phần giá đỡ cố định móc treo vào tường, nắp đậy bảo vệ phía ngoài cuộn giấy luôn được khố ráo và sạch sẽ.
- Được làm từ chất liệu kẽm siêu bền, không bị cong vênh khi va đập, có khả năng chống hoen gỉ tốt, thân thiện với môi trường.
- Lớp mạ bền vững với thời gian và bạn dễ dàng cảm nhận được chất lượng.
Bản vẽ kỹ thuật của lô giấy vệ sinh TOTO YH903V
Xem thêm bản vẽ kỹ thuật của sản phẩm để thuận tiện hơn trong việc lắp đặt nhé!
Hiện nay các sản phẩm phụ kiện nhà tắm TOTO đã được phân phối tại cửa hàng Kim Quốc Tiến với nhiều mẫu mã đẹp mắt. Chất lượng đảm bảo cùng mức giá thành vô cùng phải chăng. Đội ngũ nhân viên tư vấn luôn sẵn sàng hỗ trợ. Giúp quý khách lựa chọn những mẫu vật dụng phục vụ nhu cầu vệ sinh tối ưu. Liên hệ ngay nhé!
Danh mục: Thiết Bị Vệ Sinh | Phụ Kiện Nhà Tắm | Lô Giấy
Thương hiệu: Thiết bị vệ sinh TOTO
Review Móc Treo Giấy Vệ Sinh TOTO YH903V
There are no reviews yet.