LT952 thuộc dòng sản phẩm lavabo đặt bàn của hãng thiết bị vệ sinh TOTO. Sản phẩm có hình dáng tinh tế, hiện đại. Lớp men sứ sáng bóng, hạn chế trầy xước cao, cho độ bền đẹp, lâu dài với thời gian. Cùng công ty chúng tôi tìm hiểu kỹ hơn về nó qua bài viết sau nhé!
Thông tin chi tiết của lavabo TOTO LT952 đặt bàn
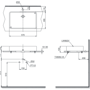
- Mã sản phẩm: LT952
- Xuất xứ: Việt Nam
- Kích thước: L355 x W570 x H132 mm
- Màu sắc: Trắng
- Chất liệu: Sứ vệ sinh
- Lỗ bắt vòi: Trên bàn
- Đường kính lỗ bắt vòi: Ø35 (mm)
- Lỗ xả tràn: Không có
Đặc điểm nổi bật của sản phẩm
- Hoàn thiện từ chất liệu sứ cao cấp, bề mặt được tráng men sáng bóng, chống bám bẩn, bám dính cao, ngăn ngừa nấm mốc, các vệt ố vàng xuất hiện.
- Có thiết kế đẹp mắt với thành chậu không quá cao được làm theo công nghệ mới nên mỏng hơn.
- Kiểu dáng gọn gàng, kết hợp cùng kệ đặt bàn vô cùng sang trọng. Đường nét mềm mại, hài hòa, thu hút mọi ánh nhìn.
- Bề mặt bồn rửa rộng lớn ngăn nước văng ra ngoài trong quá trình sử dụng, đảm bảo vệ sinh, sạch sẽ.
- Phù hợp lắp đặt với nhiều không gian phòng tắm có diện tích rộng lớn, tạo sự thoải mái và dễ chịu cho người sử dụng.
- Các bạn có thể tùy chọn lắp đặt kết hợp với các mẫu vòi chậu khác nhau như: TLG01307V, TLG02307V, TLG03305V, TLG04307V, TLS01307V, TLS02305V, TLS03305V, TLS04306V,…
Dưới đây là bản vẽ kỹ thuật của sản phẩm, tham khảo thêm để tiện hơn trong việc lắp đặt ngay tại nhà nhé!

Vì sao nên chọn mua lavabo đặt bàn TOTO cho phòng tắm?
Lavavo đặt bàn TOTO là sự lựa chọn vô cùng hoàn hảo dành cho nhiều không gian nhà tắm. Được sản xuất trên dây chuyền công nghệ hàng đầu của Nhật Bản. Nguyên vật liệu sứ vệ sinh cao cấp, chống bám bẩn tốt, kháng khuẩn cao, cho độ bền vượt trội, dễ dàng vệ sinh và lau chùi. Kiểu dáng mẫu mã đẹp mắt, thiết kế sang trọng và phong phú.Đáp ứng tối ưu nhu cầu chọn lựa của người dùng. Đem đến một không gian thẩm mỹ tuyệt vời. Và dễ dàng phối với các đồ nội thất nhà tắm khác. Ngoài ra với mức giá thành phải chăng mà hãng đã mang lại, phù hợp với túi tiền của mọi phân khúc khách hàng. Vậy thì còn chần chờ gì nữa mà không nhanh tay sở hữu cho nhà mình. Liên hệ 1900 571 590 ngay để được nhân viên tư vấn chọn lựa chậu rửa phù hợp.
Xem thêm các sản phẩm liên quan khác của Kim Quốc Tiến: Lavabo đặt bàn TOTO, Lavabo TOTO, thiết bị vệ sinh TOTO, Lavabo
Xuân Liên
Mình cần mua Lavabo này thì liên hệ cho ai ?
Kim Quốc Tiến Quản trị viên
Dạ chào bạn! Bạn vui lòng để lại sđt, nhân viên của bộ phận CSKH sẽ liên hệ và tư vấn chi tiết cho mình ạ
Nguyễn Tân
1 Bồn có giao ở Biên Hòa được không?
Kim Quốc Tiến Quản trị viên
Dạ được ạ