Lavabo INAX âm bàn L-2395V dương vành với kiểu dáng thiết kế sang trọng, phù hợp lắp đặt sử dụng cho nhiều không gian nhà vệ sinh khác nhau. Được sản xuất trên dây chuyền hiện đại của thương hiệu thiết bị vệ sinh INAX Nhật Bản, mang đến cho người dùng một sản phẩm chất lượng tốt, tính năng ưu việt.
Thông số kỹ thuật của chậu INAX L2395
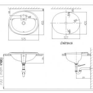
- Kích thước sản phẩm: W575 x D465 x H206 mm
- Phân loại: Lavabo âm bàn
- Kiểu dáng: Hình dáng tròn
- Bề mặt: Trơn láng màu trắng
- L-2395VEC: Kiểu 3 lỗ
- L-2395VFC: Kiểu 1 lỗ
- Đóng gói không bao gồm phụ kiện (vòi, bộ xả…)
Bạn cũng có thể dùng với vòi chậu Inax: LFV-1102S-1, LFV-12102S-1, LFV-222S … cực kỳ đẹp cũng như đẳng cấp.
Danh mục: Thiết Bị Vệ Sinh | Chậu Rửa Lavabo | Lavabo INAX | Lavabo INAX âm bàn
Sau đây là bản vẽ kỹ thuật của chậu rửa lavabo âm bàn L2395V giúp bạn dễ dàng lắp đặt ngay tại nhà

Một số đặc điểm nổi bật của chậu âm bàn INAX L2395V
Bề mặt ứng dụng công nghệ men sứ 100 năm trắng sạch với đặc tính nổi bật là kháng khuẩn, chống bám bẩn.
Lavabo L-2395V được thiết kế lắp âm bàn, vành dương sang trọng phù hợp với các không gian nhà tắm có diện tích vừa và lớn.
Viền chậu phẳng hạn chế nước đọng gây khó khăn trong làm vệ sinh, thành chống bám bẩn.
Để biết thêm thông tin chi tiết về sản phẩm này, hãy liên hệ ngay với Kim Quốc Tiến qua hotline 1900 5715 90 để được nhân viên tư vấn hỗ trợ. Ngoài ra, khách hàng có thể đến trực tiếp cửa hàng của chúng tôi qua địa chỉ sau để trải nghiệm thực tế thiết bị và mua hàng nhé!
nguyễn phước thiện
Nếu có đi kèm phụ kiện thì hay hơn nhiều, nhưng nói chung thì chậu rửa chắc chắn, đẹp.
Kim Quốc Tiến Quản trị viên
Cảm ơn bạn đã tin tưởng và lựa chọn mua hàng tại Kim Quốc Tiến
Hà Thành Đạt
Chuyển sang lavabo kiểu này dùng tiện nè, kiểu âm bàn á, nên là dễ dọn dẹp ở phía trên, không có bị vướng, được nha!!!
Kim Quốc Tiến Quản trị viên
Cảm ơn bạn đã tin tưởng và lựa chọn mua hàng tại Kim Quốc Tiến