Chậu lavabo âm bàn L-2216V là dòng sản phẩm cao cấp đến từ thương hiệu thiết bị vệ sinh INAX Nhật Bản. Sở hữu thiết kế hình elip độc đáo cùng những đường nét thanh lịch đẹp mắt, tạo nên vẻ đẹp sang trọng cho không gian nhà tắm. Hôm nay siêu thị Kim Quốc Tiến sẽ cùng bạn đi tìm hiểu chi tiết sản phẩm này ở dưới đây nhé.
Thông tin cơ bản bồn lavabo Inax L-2216V
- Phân loại: Chậu rửa mặt âm bàn
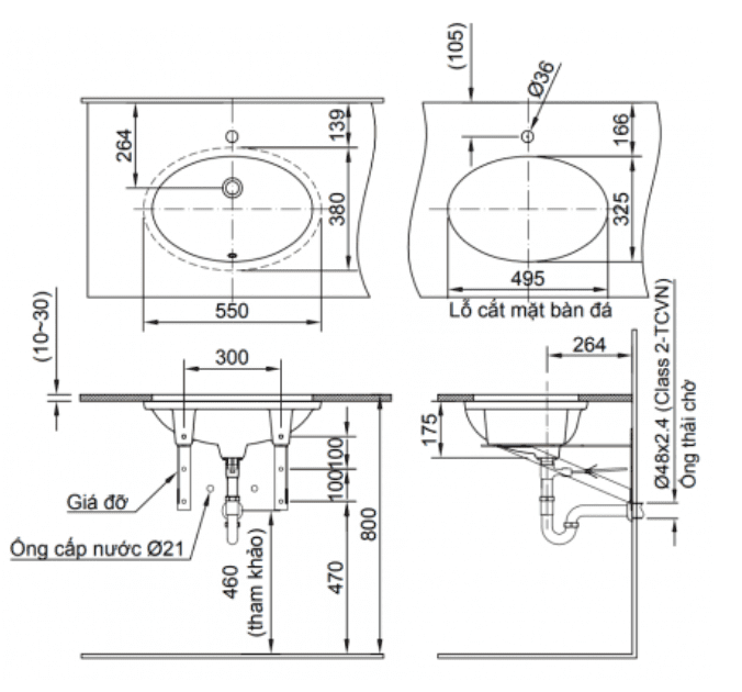
- Kích thước: 380 x 175 x 550 mm
- Màu sắc: Trắng tinh khiết
- Chất liệu đúc: sứ cao cấp
- Đóng gói sản phẩm: Không bao gồm giá đỡ chậu A-L2298V-1, không có phụ kiện như vòi, bộ xả.
- Có thể dùng với vòi chậu Inax khác như: LFV-1102S-1, LFV-12102S-1, LFV-222S, LFV-2002S, LFV-13B, LFV-102S, AMV-50B..
Danh mục: Thiết Bị Vệ Sinh | Chậu Rửa Lavabo | Lavabo INAX | Lavabo INAX âm bàn
Tính năng nổi bật của lavabo INAX âm bàn L2216V
- Thiết kế hình elip với đường nét thanh thoát và mềm mại đem lại luồng gió mới cho không gian nhà tắm.
- Cạnh mỏng làm tăng tiết diện bên trong lòng chậu mang sự thoải mái cho quá trình sử dụng.
- Vòi rửa được gắn bên ngoài chậu làm tăng thêm vẻ đẹp toàn diện cho thiết kế của lavabo.
- Chậu âm bàn Inax L-2216V làm từ sứ cao cấp nên rất bền chắc. Bề mặt luôn sáng bóng, không bị trầy xước.
- Một số lưu ý khi lắp đặt và sử dụng bồn rửa mặt Inax đúng cách
- Đối với các lavabo âm bàn thì hãy đặt chậu sao cho logo Inax cùng phía với vòi rửa.
- Do được làm sứ nên rất dễ vở, khi lắp đặt và di chuyển phải cẩn thận, tránh va đập mạnh.
- Trước khi lắp đặt phải xem xét và xác định không có hư hại
- Sau khi lắp cũng cần kiểm tra và xác định không có hư hại trong khi lắp đặt.
Dưới đây là bản vẽ kỹ thuật của sản phẩm, bạn nên tham khảo để nắm thêm thông tin nhé.

Nếu bạn đang có thắc mắc về sản phẩm cũng như đang muốn mua các sản phẩm chính hãng Inax. Hãy đến với đại lý thiết bị vệ sinh Inax chính thức và ủy quyền – Kim Quốc Tiến.
Hình Ảnh Thực Tế Sản Phẩm Chậu Rửa Lavabo INAX L-2216V Âm Bàn










huyen trang
sản phẩm hiện đại, đẹp, sang, thiết kế âm bàn, nên nhìn rất gọn gàng, không có chiếm nhiều không gian.
Kim Quốc Tiến Quản trị viên
Cảm ơn bạn đã tin tưởng và lựa chọn mua hàng tại Kim Quốc Tiến
Vũ Ngọc Hân
mấy cái lavabo ở nhà dùng được 1 thời gian thấy dễ ố vàng, mà từ ngày chuyển qua dùng sản phẩm ở đây thấy sạch sẽ hơn hẳn, dễ dọn rửa nữa.
Kim Quốc Tiến Quản trị viên
Cảm ơn bạn đã tin tưởng và lựa chọn mua hàng tại Kim Quốc Tiến