Bồn cầu điện tử TOTO MS636CDRW12#XW tích hợp hệ thống xả Tornado Siphon Jet mạnh mẽ và nắp điện tử mang đến trải nghiệm sử dụng tối ưu. Sản phẩm có thiết kế thân kín, vành kín, kết hợp cùng men sứ chống bám bẩn và các tính năng như rửa nước ấm, sưởi ấm nắp ngồi, tự động khử mùi, đáp ứng nhu cầu vệ sinh tiện nghi và an toàn.
Thông số kỹ thuật Bồn cầu điện tử TOTO MS636CDRW12#XW
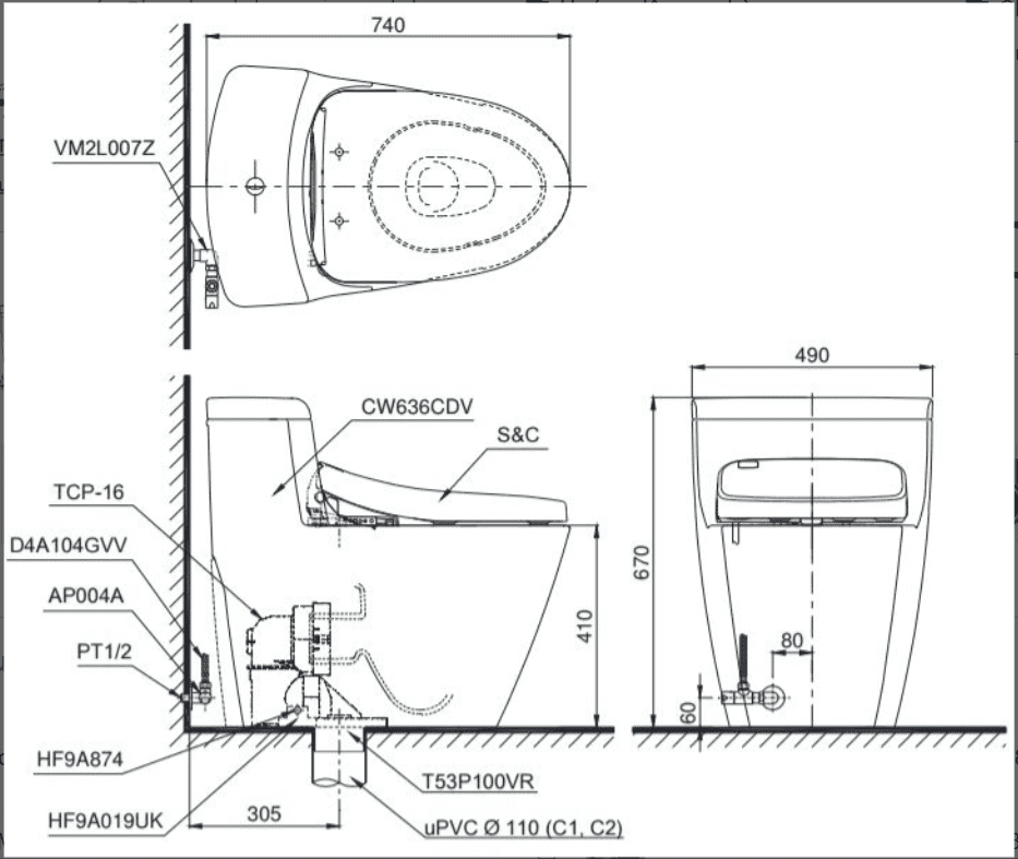
- Mã sản phẩm: MS636CDRW12#XW
- Hệ thống xả: Tornado Siphon Jet
- Lượng nước xả: 4.5L/3L
- Thiết kế: Thân dài
- Tâm xả: 305 mm
- Kích thước: 720 x 420 x 730 mm
- Áp lực nước: 0.05MPa ~ 0.75MPa
- Màu sắc: Trắng
- Bao gồm: Van khóa và gioăng đế
- Thân cầu: C636CDR – Xuất xứ: Việt Nam
- Nắp rửa điện tử: TCF4911EZ – Xuất xứ: Malaysia
Tính năng nổi bật Bồn cầu điện tử TOTO MS636CDRW12#XW
- Bồn cầu điện tử TOTO MS636CDRW12#XW sở hữu hệ thống xả Tornado Siphon Jet cho lực xả mạnh mẽ, cuốn trôi mọi cặn bẩn mà vẫn đảm bảo tiết kiệm nước tối đa.
- Bề mặt bồn cầu phủ lớp men CEFIONTECT giúp chống bám bẩn hiệu quả, duy trì độ sáng bóng lâu dài và hạn chế tối đa vi khuẩn tích tụ.
- Nắp rửa điện tử TCF4911EZ đi kèm với bảng điều khiển từ xa, tích hợp chức năng tự động đóng mở, rửa trước/sau massage, điều chỉnh nhiệt độ nước, sấy khô và bệ ngồi, đáp ứng nhu cầu đa dạng của người dùng.
- Bồn cầu điện tử TOTO MS636CDRW12#XW còn có tính năng phun sương Ewater+ làm sạch vòi rửa và lòng bồn cầu, khử mùi tự động sau mỗi lần sử dụng, giúp duy trì không gian vệ sinh luôn sạch sẽ và thoáng khí.
Bản vẽ kỹ thuật Bồn cầu điện tử TOTO MS636CDRW12#XW

Danh mục: Thiết Bị Vệ Sinh / Bồn Cầu / Bồn cầu TOTO / Bồn Cầu Thông Minh TOTO
Thương hiệu: Thiết Bị Vệ Sinh TOTO


Lương Quang Lâm
Cầu tốt sài ok lực hút mạnh, mẫu đẹp….
Kim Quốc Tiến Quản trị viên
Cảm ơn bạn đã tin tưởng và mua hàng tại Kim Quốc Tiến. Nếu bạn có bất kì thắc mắc hay hỗ trợ nào khác, vui lòng liên hệ ngay với chúng tôi!
Tú Nguyễn
Bồn cầu nhìn lạ quá
Kim Quốc Tiến Quản trị viên
Cảm ơn bạn đã tin tưởng và mua hàng tại Kim Quốc Tiến. Nếu bạn có bất kì thắc mắc hay hỗ trợ nào khác, vui lòng liên hệ ngay với chúng tôi!