Bồn cầu điện tử TOTO CS320DRW16#W là lựa chọn phù hợp cho người dùng tìm kiếm sản phẩm vệ sinh hiện đại, tích hợp nhiều tiện ích tự động. Sản phẩm sở hữu hệ thống xả Siphon mạnh mẽ, tiết kiệm nước, kết hợp nắp rửa điện tử giúp nâng cao trải nghiệm sử dụng nhờ các tính năng tự vệ sinh vòi rửa, sưởi ấm, khử mùi và sấy khô.
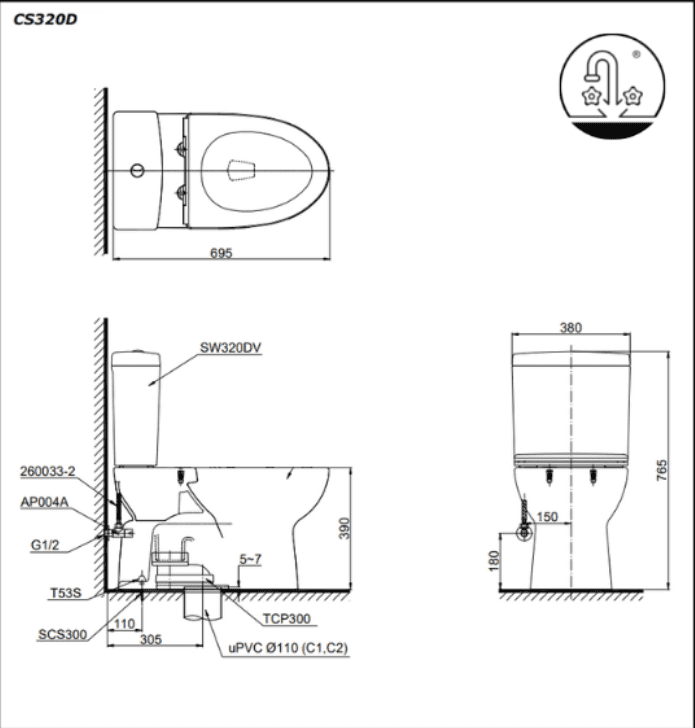
Thông số kỹ thuật Bồn cầu điện tử TOTO CS320DRW16#W
- Mã sản phẩm: CS320DRW16#W
- Kích thước: 695D x 380W x 765H mm
- Màu sắc: Trắng
- Hệ thống xả: Siphon
- Lượng nước xả: 4.8L/3L
- Thiết kế: Thân dài, thân bán kín
- Tâm xả: 305 mm
- Áp lực nước: 0.05 ~ 0.70 MPa
- Nguồn điện: 220V, 50/60Hz
- Thân cầu: C320R – Xuất xứ: Việt Nam
- Két nước: S320D – Xuất xứ: Việt Nam
- Nắp rửa điện tử: TCF23410AAA – Xuất xứ: Malaysia
Tính năng nổi bật Bồn cầu điện tử TOTO CS320DRW16#W
- Bồn cầu điện tử TOTO CS320DRW16#W trang bị hệ thống xả Siphon có lực hút mạnh, giúp xả sạch chất bẩn hiệu quả trong khi vẫn tiết kiệm nước.
- Nắp rửa TCF23410AAA ứng dụng công nghệ Ewater+ cho phép vệ sinh vòi rửa bằng dung dịch điện phân trước và sau mỗi lần sử dụng, giữ vòi luôn sạch khuẩn.
- Sản phẩm sở hữu vòi rửa đa chế độ massage linh hoạt, điều chỉnh được vị trí, hỗ trợ rửa trước và sau một cách nhẹ nhàng, an toàn cho người sử dụng.
- Bồn cầu điện tử TOTO CS320DRW16#W được tích hợp chức năng sưởi ấm nắp ngồi giúp loại bỏ cảm giác lạnh khi sử dụng vào mùa đông, cùng với khử mùi và sấy khô tự động đảm bảo không gian nhà vệ sinh luôn khô ráo, thoải mái.
Bản vẽ kỹ thuật Bồn cầu điện tử TOTO CS320DRW16#W

Danh mục: Thiết Bị Vệ Sinh / Bồn Cầu / Bồn cầu TOTO / Bồn Cầu Thông Minh TOTO
Thương hiệu: Thiết Bị Vệ Sinh TOTO
Lê Nguyễn Thành Sang
nhân viên cửa hàng cực kì dễ thương, tư vấn nhiệt tình. Cũng như hỗ trợ giao và đặt hàng
Kim Quốc Tiến Quản trị viên
Cảm ơn bạn đã tin tưởng và lựa chọn mua hàng tại Kim Quốc Tiến
Dung Nguyễn
sản phẩm đẹp sắc sảo, và chất lượng so với giá thành
Kim Quốc Tiến Quản trị viên
Cảm ơn bạn đã tin tưởng và lựa chọn mua hàng tại Kim Quốc Tiến